10155 Pilgrim Lane N
Maple Grove (MN) 55369
List Price: $474,900
Pending
StatusPending
Beds4
Baths3
Living Area2468
YR1977
School District1255
DOM5
Public Remarks
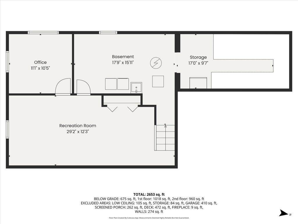
Welcome to this 2-story charmer situated nicely on a flat, spacious & treed corner lot. This home has great curb appeal & features low-maintenance vinyl siding, a concrete driveway, & a park-like, private backyard complete with firepit & handy storage shed. Step inside to an inviting entryway with open staircase, which sets the tone for the bright, welcoming interior. The formal living room showcases a beautiful bow window & flows seamlessly into the generously sized formal dining room...also accented with a bow window. At the heart of the home is an custom dream kitchen, complete with natural wood cabinetry, granite CT's, tile backsplash, center island with storage & seating, a pantry, stainless steel appliances, & recessed lighting. Enjoy informal dining at both the kit table area & convenient stool setting at the island. The kitchen opens to a cozy main-floor family room featuring a brick fireplace (gas) flanked by built-in shelves & cabinets. A fantastic 3-season porch/sunroom with vaulted ceiling extends your living space & walks out to a spacious deck & private hot tub...ideal for entertaining or unwinding. The main level also includes an updated half bath & a mudroom off the garage. Upstairs, you'll find 4 BRs on 1 level, including a spacious owner's suite with a custom 3/4 baht plus 2 closets. The huge 2nd BR also offers two closets. 2 additional BR's & a beautifully updated common bath complete the upper level compete the upper level. The lower level provides even more versatility with a large fam/rec room, an office (or future 5th BR), & a clean, roomy laundry & storage area. Note that the furnace is brand new & also feel secure having a home security system. Outdoor lovers will appreciate being just steps from Boundary Creek Park & within walking distance of Elm Creek Preserve & all its amenities. Nice...come check it out!
Quick Specifications
Price :
$474,900
Status :
Pending
Property Type :
Residential
Beds :
4
Year Built :
1977
Approx. Sq. Ft :
2468
School District :
1255
Taxes :
$ 5511
MLS# :
6822632
Interior Features
Foundation Size :
990
Fireplace Y:N :
1
Baths :
3
Bath Desc :
Array
Lot and Location
PostalCity :
Hennepin
Zip Code :
55369
Directions :
169 TO 101st Ave N, West pm 101st Ave to Nathan, right on Nathan to 101st Place N, left on 101st Place N to home, on corner of 101st Place N & Pilgrim Lane N.
Lot Description :
Corner Lot, Tree Coverage - Medium
Lot Dimensions :
95x130
Zoning :
Residential-Single Family
School District :
1255
School District Phone :
7633917000
Structural Features
Class :
Residential
Basement :
Block, Drain Tiled, Finished, Full, Sump Basket
Garage :
2
Accessibility Features :
None
Sewer :
City Sewer/Connected
Water :
City Water/Connected
Financial Considerations
DPResource :
Yes
Foreclosure Status :
No
Lender Owned :
No
Potential Short Sale :
No
Latitude :
45.1389
MLS# :
6822632
Style :
Single Family Residence
Tax Amount :
$ 5511
Tax With Assessments :
5511
Tax Year :
2025
