111309 Village Road
Chaska (MN) 55318
List Price: $325,000
Pending
StatusPending
Beds3
Baths3
Living Area1869
YR2001
School District686
DOM29
Public Remarks
Welcome to 111309 Village Rd, where privacy is something you actually feel the moment you arrive. Tucked into a quiet, wooded setting, this end unit townhome is one of just 16 homes in the community, giving it a calm, uncrowded feel that is hard to find. Mature trees wrap around the home, offering natural privacy in every season, just steps away from more than 10 miles of trails that connect family neighborhoods, playgrounds and parks. Whether you like to walk, bike or run, you won’t be lacking for beautiful scenery to look at along the way!
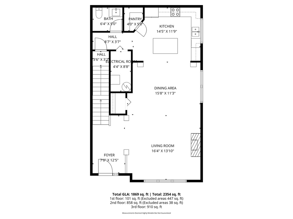
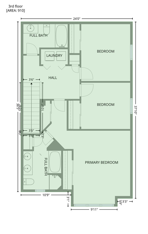
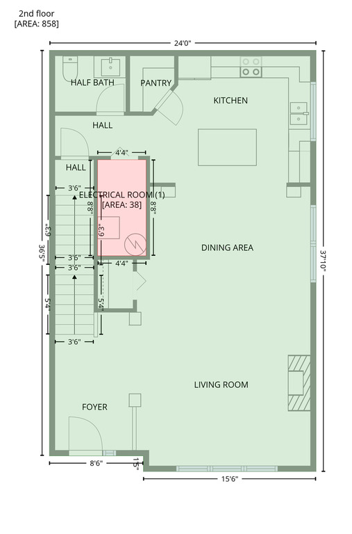
The main level is open, bright, and easy to live in. The layout flows naturally from room to room, making it just as comfortable for a quiet night in as it is for hosting friends. The updated kitchen includes an ample walk-in pantry with ceiling height shelving to maximize storage. The gas fireplace adds warmth and character to the living space, and a main level powder room is tucked away, perfect for guests. Upstairs, the primary bedroom stands out with its size and sense of separation. The ensuite bathroom and shower make the space a private retreat for decompressing at the end of the day. Two additional light-filled bedrooms work well for guests, work from home space, or whatever life needs next. All three bedrooms feature new carpet and generous space. The washer and dryer are situated on the second floor, so need to carry laundry up and down stairs. A private, heated underground two car garage takes the stress out of Minnesota winters, and easy access to Highways 41, 5, and 212 keeps commuting simple. Located in the Carver County School District, this home offers a rare combination of privacy, functionality, and location that feels easy to settle into and hard to leave.
Association Information
Association Fee:
350
Assoc Fee Includes:
Building Exterior, Hazard Insurance, Lawn Care, Maintenance Grounds, Professional Mgmt, Sanitation, Sewer, Snow Removal, Water
Fee Frequency:
Monthly
Assoc Mgmt Comp:
ACT Management Inc.
Assoc Mgmt Co Phone:
7635939770
Quick Specifications
Price :
$325,000
Status :
Pending
Property Type :
Residential
Beds :
3
Year Built :
2001
Approx. Sq. Ft :
1869
School District :
686
Taxes :
$ 3650
MLS# :
7009545
Association Fee :
350
Interior Features
Foundation Size :
858
Fireplace Y:N :
1
Baths :
3
Bath Desc :
Array
Lot and Location
PostalCity :
Carver
Zip Code :
55318
Directions :
County Road 41 to west on Hundertmark Road to Village Road.
Complex/Development/Subd :
Village Point Condo Cic 46
Lot Description :
Tree Coverage - Medium
Lot Dimensions :
38x24
Road Frontage :
City Street, No Outlet/Dead End, Paved Streets
Zoning :
Residential-Single Family
School District :
686
School District Phone :
9525566100
Structural Features
Class :
Residential
Basement :
Block, Walkout
Garage :
2
Accessibility Features :
None
Roof :
Asphalt
Sewer :
City Sewer/Connected
Water :
City Water/Connected
Financial Considerations
DPResource :
Yes
Foreclosure Status :
No
Lender Owned :
No
Potential Short Sale :
No
Latitude :
44.820748
MLS# :
7009545
Style :
Townhouse Side x Side
Complex/Development/Subd :
Village Point Condo Cic 46
Tax Amount :
$ 3650
Tax With Assessments :
3650
Tax Year :
2025
